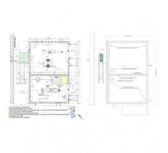
Quantity takeoff for structural steel and miscellaneous metals
May I have a Quote to do the takeoff of the attached. Areas we are to quote. Structural Steel, Railings/platforms, Bollards, Lintels, Misc Metals, Welding.
Need a help with a project like this?
Get a Quote
Need a help with a project like this?
Team
Avg. cost per sheet
$195.00
Average cost per sheet total contract will vary.
Category
Views
15402
Lead time
1-3 Business Days
About the Services
IDRAWPRO delivers professional documentation services across disciplines: from detailing and drafting to BIM/modeling and coordination support. Every scope follows the same standards for inputs, revisions, and deliverables, so documentation stays consistent as projects move.
Not sure where to start?
See How it Works
Not sure where to start?
What You Get with
Our Services
Our Services
- Project-ready documentation with clear, practical detailing
- Consistent standards and formatting across disciplines and scopes
- Revision clarity, version control, and coordination support
- Predictable delivery aligned with your project requirements and timelines
Similar Projects
See more
Quantity Takeoff for wood flooring
View Details
Quantity Takeoff for wood flooring
We want sq ft for all wood floors WD-01 and WD-02 an..
Average Cost Per Sheet:
$120.00
Average cost per sheet total contract will vary.
Team:
Misc Drafting
Category:
Quantity Takeoff
13286 views
Structural Steel and Decking Shop Drawings with 3D Model and Data for Fabrication.
View Details
Structural Steel Shop Drawings with Tekla Structures Software 3D Model and Data.
Lookin..
Average Cost Per Sheet:
$195.00
Average cost per sheet total contract will vary.
Team:
Steel Detailing
Category:
Shop Drawings
24873 views
Shop drawings for pipe bridge and framing
View Details
Shop drawings for pipe bridge and framing.
Shop drawings for pipe bridge and framing as..
Average Cost Per Sheet:
$195.00
Average cost per sheet total contract will vary.
Team:
Steel Detailing
Category:
Shop Drawings
14524 views


