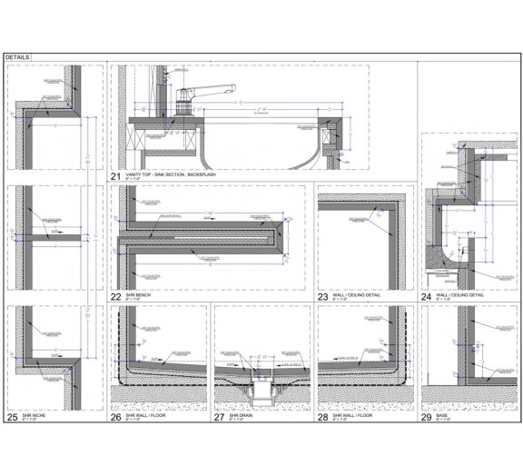
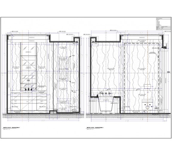
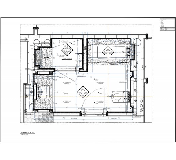
Floor and wall tile shop drawings for the prominent apartment skyscraper
Need a help with a project like this?
Team
Avg. cost per sheet
$195.00
Average cost per sheet total contract will vary.
Category
Views
17449
Lead time
3-5 Business Days
About the Services
IDRAWPRO delivers professional documentation services across disciplines: from detailing and drafting to BIM/modeling and coordination support. Every scope follows the same standards for inputs, revisions, and deliverables, so documentation stays consistent as projects move.
Not sure where to start?
See How it Works
Not sure where to start?
What You Get with
Our Services
Our Services
- Project-ready documentation with clear, practical detailing
- Consistent standards and formatting across disciplines and scopes
- Revision clarity, version control, and coordination support
- Predictable delivery aligned with your project requirements and timelines
Similar Projects
See more
Marble Staircase Volute Shop Drawings
View Details
Marble Staircase Volute Shop Drawings
Shop Drawings with cut tickets, CNC data
 ..
Average Cost Per Sheet:
$200.00
Average cost per sheet total contract will vary.
Team:
Misc Drafting
Category:
Shop Drawings
32614 views
Terrazzo Floor Shop Drawings Needed For New Construction
View Details
Terrazzo Floor Shop Drawings
Terrazzo Floor Shop Drawings. We need each terrazzo type c..
Average Cost Per Sheet:
$195.00
Average cost per sheet total contract will vary.
Team:
Misc Drafting
Category:
Shop Drawings
23736 views
Porcelain floor and wall tile shop drawings for new shopping mall
View Details
Porcelain floor and wall tile shop drawings for new shopping mall
Porcelain floor and w..
Average Cost Per Sheet:
$195.00
Average cost per sheet total contract will vary.
Team:
Misc Drafting
Category:
Shop Drawings
33518 views
Commercial Carpet and tile flooring shop drawings
View Details
Commercial Carpet and tile flooring shop drawings
Shop Drawing for New Flooring Install..
Average Cost Per Sheet:
$195.00
Average cost per sheet total contract will vary.
Team:
Misc Drafting
Category:
Shop Drawings
33365 views
Wall and floor tile shop drawings for public restrooms
View Details
We are doing wall and floor tile.
We need tile patterns and locations. Widths, details ..
Average Cost Per Sheet:
$195.00
Average cost per sheet total contract will vary.
Team:
Misc Drafting
Category:
Shop Drawings
20820 views
Commercial Quartz Kitchen and Bath Countertops Shop Drawings
View Details
Commercial Quartz Kitchen and Bath Countertops shop drawings for all units.
Kitchens ha..
Average Cost Per Sheet:
$195.00
Average cost per sheet total contract will vary.
Team:
Misc Drafting
Category:
Shop Drawings
14858 views
Stone and tile shop drawings for the building complex renovation.
View Details
QUOTE FOR:
Include TL-01, TL-02, TL-03A/B, TL-04A/B Set large format tile thinset w/ me..
Average Cost Per Sheet:
$195.00
Average cost per sheet total contract will vary.
Team:
Misc Drafting
Category:
Shop Drawings
13848 views
College Courtyard tiles layout shop drawings
View Details
College Courtyard tiles layout shop drawings
Shop drawings for the layout of the Taper ..
Average Cost Per Sheet:
$195.00
Average cost per sheet total contract will vary.
Team:
Misc Drafting
Category:
Shop Drawings
16494 views
Floor and wall tile shop drawings for a luxury residences Highrise
View Details
Floor and wall tile shop drawings for a luxury residences highrise
Please provide a quo..
Average Cost Per Sheet:
$195.00
Average cost per sheet total contract will vary.
Team:
Misc Drafting
Category:
Shop Drawings
14537 views
Stone panels shop drawings with slab nesting/rendering
View Details
Stone panels shop drawings with slab nesting/rendering.
We need to provide shop drawing..
Average Cost Per Sheet:
$195.00
Average cost per sheet total contract will vary.
Team:
Misc Drafting
Category:
Shop Drawings
14375 views
Terrazzo floor shop drawings for a technology company retail store
View Details
Terrazzo floor shop drawings for a technology company retail store
Shop drawings for in..
Average Cost Per Sheet:
$195.00
Average cost per sheet total contract will vary.
Team:
Misc Drafting
Category:
Shop Drawings
11876 views
Shop drawings for Mosaic tile on floor and walls.
View Details
Shop drawings for Mosaic tile on floor and walls.
We have a project where we're install..
Average Cost Per Sheet:
$195.00
Average cost per sheet total contract will vary.
Team:
Misc Drafting
Category:
Shop Drawings
13213 views
Pool deck with built up base, Mosaic floor and wall tile shop drawings
View Details
Pool deck with built up base, mosaic floor and wall tile shop drawings
We are only doin..
Average Cost Per Sheet:
$195.00
Average cost per sheet total contract will vary.
Team:
Misc Drafting
Category:
Shop Drawings
6522 views
I need slab nesting plans and renderings for a project I work on.
View Details
I need slab nesting plans and renderings for a project I work on.
I am in need of slab ..
Average Cost Per Sheet:
$195.00
Average cost per sheet total contract will vary.
Team:
Misc Drafting
Category:
Shop Drawings
6032 views













