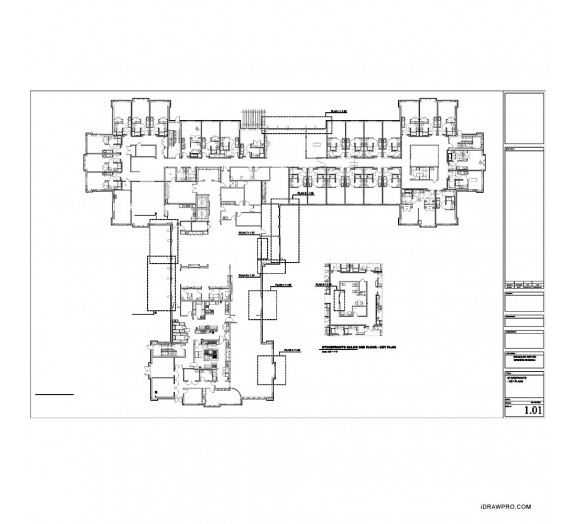
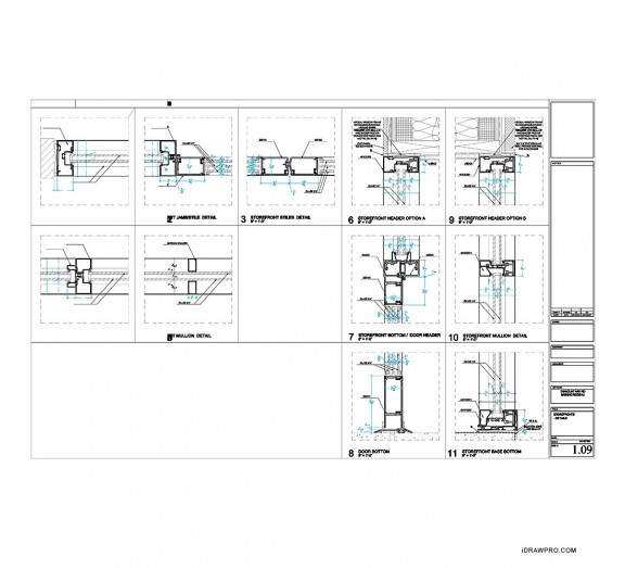
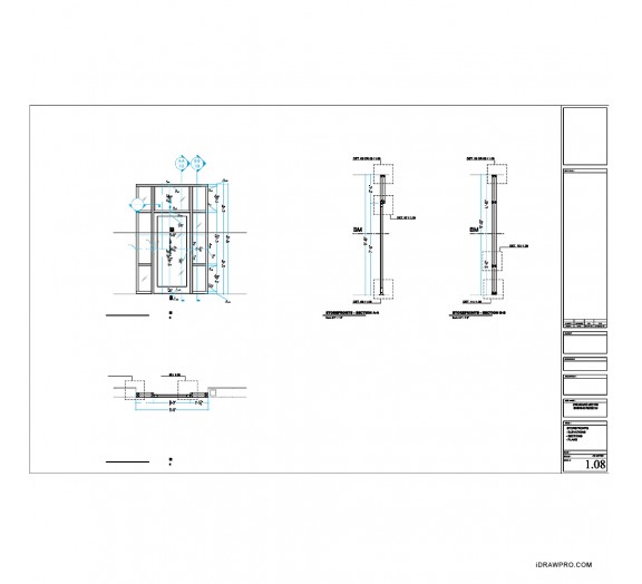
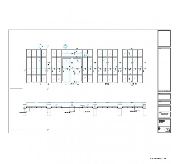
Kawneer® Storefront shop drawings needed for submittals
Need a help with a project like this?
Team
Avg. cost per sheet
$195.00
Average cost per sheet total contract will vary.
Category
Views
28227
Lead time
3-5 Business Days
About the Services
IDRAWPRO delivers professional documentation services across disciplines: from detailing and drafting to BIM/modeling and coordination support. Every scope follows the same standards for inputs, revisions, and deliverables, so documentation stays consistent as projects move.
Not sure where to start?
See How it Works
Not sure where to start?
What You Get with
Our Services
Our Services
- Project-ready documentation with clear, practical detailing
- Consistent standards and formatting across disciplines and scopes
- Revision clarity, version control, and coordination support
- Predictable delivery aligned with your project requirements and timelines
Similar Projects
See more
Storefront shop drawings needed for submittals
View Details
Storefront shop drawings needed for submittals
Shop drawings to inlcude elevations, sec..
Average Cost Per Sheet:
$125.00
Average cost per sheet total contract will vary.
Team:
Misc Drafting
Category:
Shop Drawings
41161 views
Sheet metal shop drawings for historic restoration project
View Details
Sheet metal shop drawings for historic architectural restoration project
Shop drawings ..
Average Cost Per Sheet:
$195.00
Average cost per sheet total contract will vary.
Team:
Misc Drafting
Category:
Shop Drawings
26117 views
Aluminum frame windows shop drawings
View Details
Aluminum windows shop drawings
I just need windows no doors, there is no hardware, just..
Average Cost Per Sheet:
$195.00
Average cost per sheet total contract will vary.
Team:
Misc Drafting
Category:
Shop Drawings
42730 views
I need Storefront shop drawings with material list.
View Details
I need Storefront shop drawings with material list.
Shop drawings to inlcude elevations..
Average Cost Per Sheet:
$195.00
Average cost per sheet total contract will vary.
Team:
Misc Drafting
Category:
Shop Drawings
31652 views
Kitchen hood shop drawings and template for laser cutting
View Details
Kitchen hood shop drawings and template for laser cutting
I have a kitchen hood unit to..
Average Cost Per Sheet:
$195.00
Average cost per sheet total contract will vary.
Team:
Misc Drafting
Category:
Shop Drawings
21649 views
Oldcastle BuildingEnvelope™ storefront shop drawings for submittals
View Details
Oldcastle BuildingEnvelope™ Storefront shop drawings request for submittals.
Please quo..
Average Cost Per Sheet:
$195.00
Average cost per sheet total contract will vary.
Team:
Misc Drafting
Category:
Shop Drawings
17233 views





