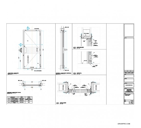
Interior Doors Shop Drawings With Hardware Schedule
Need a help with a project like this?
Team
Avg. cost per sheet
$195.00
Average cost per sheet total contract will vary.
Category
Views
22283
Lead time
3-5 Business Days
About the Services
IDRAWPRO delivers professional documentation services across disciplines: from detailing and drafting to BIM/modeling and coordination support. Every scope follows the same standards for inputs, revisions, and deliverables, so documentation stays consistent as projects move.
Not sure where to start?
See How it Works
Not sure where to start?
What You Get with
Our Services
Our Services
- Project-ready documentation with clear, practical detailing
- Consistent standards and formatting across disciplines and scopes
- Revision clarity, version control, and coordination support
- Predictable delivery aligned with your project requirements and timelines
Similar Projects
See more
Kitchen Cabinets Shop Drawings
View Details
Cabinets shop drawings
I Need shop drawings based on the architectural drawings for fol..
Average Cost Per Sheet:
$195.00
Average cost per sheet total contract will vary.
Team:
Misc Drafting
Category:
Shop Drawings
41259 views
Storefront shop drawings needed for submittals
View Details
Storefront shop drawings needed for submittals
Shop drawings to inlcude elevations, sec..
Average Cost Per Sheet:
$125.00
Average cost per sheet total contract will vary.
Team:
Misc Drafting
Category:
Shop Drawings
40784 views
Kitchen, master bath and bedroom cabinets shop drawings
View Details
Kitchen, master bath and bedroom cabinets shop drawings.
Elevation, plan view and secti..
Average Cost Per Sheet:
$195.00
Average cost per sheet total contract will vary.
Team:
Misc Drafting
Category:
Shop Drawings
29195 views
Custom wood doors shop drawings
View Details
Custom wood doors shop drawings
We have same type of door 2 types I. Width of each door..
Average Cost Per Sheet:
$195.00
Average cost per sheet total contract will vary.
Team:
Misc Drafting
Category:
Shop Drawings
25627 views
Interior wall framing shop drawings
View Details
I need interior wall framing shop drawings
Drawings to include layout, spacings, sizes,..
Average Cost Per Sheet:
$195.00
Average cost per sheet total contract will vary.
Team:
Misc Drafting
Category:
Shop Drawings
21401 views
Electrical Shop Drawings With Hardware Schedule
View Details
Electrical Shop Drawings With Hardware Schedule
Need project like this ? start with a free quote...
Average Cost Per Sheet:
$195.00
Average cost per sheet total contract will vary.
Team:
MEP Detailing
Category:
Shop Drawings
16873 views
Acoustic Ceiling Panels Grid Plan Shop Drawings With Details
View Details
Acoustic Ceiling Panels Grid Plan Shop Drawings With Details
2D ACT shop drawings per s..
Average Cost Per Sheet:
$195.00
Average cost per sheet total contract will vary.
Team:
Misc Drafting
Category:
Shop Drawings
22820 views






